76A-S «Палома» - проект двухэтажного дома, с террасой, гараж на 2 авто

Автор проекта: В. Тарасов
  • Общая площадь дома:223 м²
  • Площадь отапливаемых помещений:162 м²
Стоимость проекта:
  • Архитектурно-строительные чертежи (АС)    53 900 ₽
  • Внутренние инженерные системы (ИС) отопление, водопровод, канализация, электрооборудование    11 300 ₽
  • Строительный паспорт проекта    3 500 ₽
  • Разбивочный план вашего участка    6 000 ₽
  • Дополнительная копия проекта    4 000 ₽
  • При покупке проекта дома можно выбрать три бесплатных опции (проекта), посмотреть проекты)    1 ₽
  • Доставка по России бесплатно, в страны СНГ    По дог.
Стоимость, дополнительные опции только для проектов Тарасова В.А.:
  • Электронная копия в формате PDF     5 000 ₽
  • Корректировка Паспорта проекта
    (в зависимости от пожеланий)   
    По дог.
  • Корректировка конструкций дома
    (в зависимости от пожеланий)   
    По дог.
  • Разработать установку скрытых алюминиевых роллет (опция, отдельный альбом)    1 ₽
Заказать проектПоложить в мои желания
Спасибо за обращение к нам, в ближайшее время мы вам ответим

Архитектурные проекты домов и подробные строительные чертежи. Готовые проекты: 1. не предназначены для строительства в СЕЙСМИЧЕСКИ АКТИВНЫХ РАЙОНАХ, а фундаменты - в условиях ВЕЧНОЙ МЕРЗЛОТЫ, 2. требуют Привязки к конкретному участку строительства. Смотрите страницу СОСТАВ ПРОЕКТА ДОМА.

Авторский дизайн фасадов и комфортные планировки коттеджей, тысячи построенных домов - доверьте нам проект вашего идеального дома вдали от городской суеты.

Общая площадь дома 223 м²
Площадь гаража 37.02 м²
Общая площадь дома, без гаража 185.98 м²

«Палома» - проект двухэтажного дома, с террасой, гараж на 2 авто - технические характеристики

Тип фундамента монолитная ж/б плита
Тип наружных стен кирпич/газо(пено)бетонные блоки 107 м³
Тип внутренних несущих стен газо(пено)бетонные блоки/кирпич
Тип перекрытий сборные ж/б плиты над 1-ым этажом, по деревянным балкам над 2-ым
Тип кровли битумная черепица 247 м²
Наружная отделка стен декоративная штукатурка 286.4 м²
Наружная отделка цоколя облицовочный камень
Гараж Гараж на 2 авто/Гаражные ворота ALUTECH (реклама: ООО "Алютех-М")
Высота дома от уровня пола 1-го этажа 9.07 м
Высота 1-го этажа от пола до потолка 3 м
Высота 2-го этажа от пола до потолка 2.7 м
Ширина 16 м
Длина 15 м
Мощность котла с бойлером горячей воды 40 кВт
Расчётная электрическая нагрузка с электроплитой 11.4 кВт
Утеплитель минеральная вата
Материал окон из ПВХ профилей/Защитные роллеты ALUTECH (реклама: ООО "Алютех-М")

Описание проекта

Отличительная черта особняка 76А 3D «Палома» — создание максимального комфорта для проживающих в нем минимальными средствами. В отделке фасадов мы видим идеальное сочетание белоснежного цвета оштукатуренных стен, цоколя из декоративного камня и серой битумной черепицы, полностью отвечающее классическому замыслу архитектора.

Респектабельный и основательный внешне, он имеет гармоничную структурированную планировку. Достоинствами проекта можно назвать:

  • наличие большого гаража, рассчитанного на два автомобиля;
  • просторный, лишенный разделительных перегородок и прекрасно освещенный объем столовой и гостиной, обогреваемых в зимний период высоким камином;
  • четырехгранную в плане террасу, выходящую на задний двор.

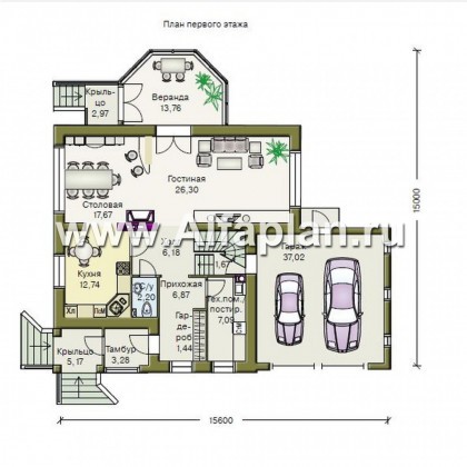
Поэтажная планировка

В передней части здания на первом этаже в основном располагаются, все вспомогательные и функциональные помещения.  Тамбур ведет в прихожую с гардеробной. Из него можно попасть в комнату, служащую техническим целям, здесь может быть оборудована котельная и постирочная. Небольшой холл предваряет лестницу с забежными ступенями. Кухня имеет выходы в гостиную и холл.

На втором этаже оборудована полноценная зона отдыха. Ванная с компактной сауной и санузлом находится по центру и удобна для использования всеми обитателями дома. Три отдельных уютных спальни со встроенными платяными шкафами выходят в холл. Большой балкон расположен прямо над верандой. Он даст возможность трапезничать на воздухе и отдыхать, принимая воздушные ванны.

Совокупность удобств дома делают его привлекательным для активной семьи из 3–4 человек. Предпочтения владельцев могут изменить его первоначальный облик. Например, на заднем дворе по соседству с террасой может быть устроен бассейн или небольшой сезонный спортивный комплекс.

Постоянные АКЦИИ, подробней: (ССЫЛКА)

Сервис для заказчиков

  • Сервис
    для заказчиков

    Внесение изменений в проекты

    Подробнее
  • Корректировка
    конструкций

    Изменение фундамента, перекрытий, теплые полы

    Подробнее
  • Планировка
    участка

    Разбивочный план, благоустройство, озеленение

    Подробнее
  • Индивидуальное
    проектирование

    Разработка проекта по заданию Закачика

    Подробнее
  • Индивидуальный
    фасад

    Корректировка фасада по желаниям заказчика

    Подробнее

Комментарии 18

  • Ха

    отличный проект! Интересует несколько вопросов( не специалист): 1. Где предусмотрена в этом проекте котельная? 2. Можно ли изменить проект( если понадобится) для внеднерия двух ( а может и трех) вариантов отопления? 3.Для нагрева воды возможно предусмотреть в проекте гелиосистему? 4 И еще, в нашем довольно холодном климате, где обогрев нужен почти 8 мес. в году, не обойтись без достаточно массивных наружних стен, отсюда вопрос: можно ли при необходимости,увеличить ширину наружних стен в проекте?

    Ирина, здравствуйте.
    Благодарим за такую высокую оценку нашего проекта.
    Котельная расположена слева от прихожей - Тех. помещение 7.09 м2
    В качестве источника тепла на отопление и горячее водоснабжение используется котел с бойлером (с насосом и расширительным баком). Топливо для котла выбирается в зависимости от местных условий (газ, мазут, уголь и т.д.)
    Система отопления запроектирована двухтрубная лучевая от коллекторов, расположенных на каждом этаже дома.
    Проектом предусмотрена установка отопительных приборов типа: стальные панельные радиаторы "Kermi" (с воздуховыпускным краном и терморегулирующим клапаном) с настенным креплением и боковым подключением.
    Помещения ванной комнаты отапливаются при помощи «теплого пола».
    Параметры теплоносителя в системе отопления на радиаторы 90-70оС , а на « теплый пол» 50-40оС.
    Применить другие Варианты отопления Вы сможете самостоятельно, подключив специализированные компании.
    Наружные стены предусмотрены из газобетона или пустотного кирпича ( альтернативно) т.е. и тот и другой материал заложен в проекте, рассчитан в спецификации. Конструкция стены многослойная : 375/400 мм - газобетон + слой утеплителя- Мин. вата (от 50 до 100 мм, толщина варьируется в зависимости от климатической зоны) + воздушная прослойка 30-40 мм + лицевой кирпич ( штукатурка). В случае использования пустотного кирпича, несущая часть стены — пустотный кирпич 380 мм.
    У нас на сайте в разделе Технологии строительства /онлайн размещена таблица с теплотехническими коэффициентами ограждающих конструкций по регионам. Вы сможете подобрать свой вариант стены. 
    --

    Ответ на комментарий
  • Новосибирск

    Добрый день!!! Очень хороший проект!!! Скажите,а за место штукатурки наружных стен возможно ли отделка облицовочным кирпичом?Если да то при заказе мной этого проекта бутит ли это отображено в проекте.Планирую стену 380-кирпич 10-пенаплекс и облицовочный кирпич-0,5(получатся так????).Заранее благодарю!!

    Добрый день, Вячеслав.

    Отделка облицовочным кирпичем возможна, так как монолитная фундаментная плита выступает за габариты стен дома и на нее можно поставить облицовку. При покупке проекта вы можете запросить отдельные листы (дополнительно к проекту) с типовыми деталями на такой случай.

    Ответ на комментарий
  • Анапа

    Очень понравился дом, ничего лишнего и вроде все есть. Подскажите ( не специалист ) для строительства такого дома в Анапе какой лучше фундамент?. Спасибо!

    Александр, здравствуйте.
    Конструкция фундамента, в первую очередь, определяется характеристикой грунтов на вашего участка.
    Если у Вас есть заключение Инженерно-геологических изысканий, присылайте, конструктор посмотрит и даст заключение о возможности применения проектного фундамента.

    Ответ на комментарий
  • Нижний Новгород

    Здравствуйте! Обалдел в самом лучшем смысле от такой красоты... Можно ли создать проект такого дома для каркасного строительства???

    Роман, здравствуте.
    Благодарим за такой хороший, эмоциональный отзыв о наших проектах. Но за корректировку проектной документации под кркас мы не возьмемся.
    Обратите внимание на то, что заметного удешевления строительства не достигается, так как речь идет об экономии только при возведении стен, а сами стены в общей стоимости дома - не более 15-20%(есть еще фундамент, перекрытия, стропила и кровля, окна и двери, инженерные системы, отделка.). При этом, при строительстве по каркасной технологии нужны опытные квалифицированные рабочие (или фирма), и такую работу уже мы бы не советовали доверять дешевым гастарбайтерам с низкой квалификацией. Стоимость работы отразится на стоимости дома.
    --

    Ответ на комментарий
  • воткинск

    Здравствуйте ! Отличный проект ! Но вот что интересует - является ли монолитная плита фундамента полом 1 этажа? Если нет, то будет ли экономически выгодней применить ленточный из сборных ж.б. блоков ? Тем более , что такой вариант фундамента Вами уже разработан. И еще - есть желание строить из POROTERM 44 или 51 без утеплителя , хотел бы узнать Ваше мнение ! Спасибо !

    Михаил, здравствуйте.
    Монолитная плита основания не является полом первого этажа. На ней выполнена засыпка песком и уже по уплотненному слою песка выполняется монолитный пол первого этажа. Вы можете выбрать ту конструкцию фундамента, которая для Вас удобнее и подходить к грунтовым условиям Вашего участка. Строительство из крупноформатных керамоблоков возможно. Использование мелкоформатного блока 2NF заложено в проекте. Крупноформатный блок может потребовать дополнительных доборных элементов, но это вопрос решаем и затруднений не должен вызвать.
    --

    Ответ на комментарий
  • Улан-Удэ

    Здравствуйте! Мне очень нравиться проект. Планирую построить такой дом. Скажите пожалуйста; 1 Рассчитаны ли такие дома на холода ниже 40 градусов, и выше 40 градусов, 2 Можно ли убрать ванную и туалет со второго этажа, мне не нравится, что он находиться прямо над кухней, 3 Можно ли применять такие большие окна в нашем климате 4 Рассчитаны ли система отопления при своей скажине и канализации, 5 Проект приходит по почте или как 6 Есть ли в проекте коммуникационная система, т.е. э/э, интернет, вода, стоки и т.д. 7 Рассчитана ли примерное количество материала, кирпичей или газобетона и т.д. Заранее спасибо.

    Евгения, здравствуйте.

    В полный комплект чертежей входят :Архитектурные чертежи,Конструкторские чертежи,Инженерные разделы:Отопление, Водопровод-канализация, Электрооборудование.
    Более подробную информацию о сордержании каждого из разделов можно посмотреть в разделе Состав Документации\

    В проекте есть Все необходимые спецификации.
    В Архитектурно-строительной части спецификации на материалы необходимые для строительства коробки дома, в Инженерных разделах проекта - для монтажа инженерных систем ( расчеты, спецификации, поэтажные планы с расстано)вкой соответствующего оборудования.)

    Отправка проекта осуществляется курьерской службой.
    При строительстве в холодной климатической зоне необходимо увеличивать толщину слоя утеплителя в наружных стенах . Проект это позволяет сделать.

    Ответ на комментарий
  • Екатеринбург

    Мы тоже очарованны таким уютным домиком, он такой красивый и скромный не кричащий и позитивный.

    Добрый день, Наталия и Павел.  Спасибо вам за отзыв о проекте и желаем вам построить понравившийся вам дом в ближайшие годы!
    Личная благодарность от архитектора Владимира Тарасова - очень приятно в первый рабочий день 2012 года получить такой отзыв!
    Ответ на комментарий
  • Очень понравился проект, но у меня на участке перепад высот на площади дома по диагонали 1,2-1,5 метра, думаю как будет выглядеть дом и какой фундамент в моем случае лучше использовать плиту или монолитную ленту, г. Челябинск, грунт-суглинок.

    Александр, здравствуйте.

    Благодарим за хороший отзыв о нашем проекте. Многое будет зависить от привязки проекта к участку, как пойдет уклон, какая величина уклона непосредственно под пятном застройки.  Может быть с небольшим заглублением пройдет и монолминая плита, заложенная в проекте. Возможно понадобится разработка ленточного фундамента.

    Ответ на комментарий
  • Интересует,возможно ли заложить цоколь и перенести туда тех. помещение,а имеющееся тех.постирочное помещение превратить в гардероб? Какова стоимость изменения проекта? Заранее благодарна за ответ.

    Наталья, здравствуйте.

    Цокольный этаж можно добавить в объеме Паспорта проекта - в планировках, более подробно можно посмотреть здесь:https://www.alfaplan.ru/genplan/. Рабочую документацию мы не корректируем.

    Ответ на комментарий
  • Пожалуй это лучшее из возможного! Браво! На данном этапе подбираю участок для строительства,но проект уже выбрала! Палома-Чудо!
    Ответ на комментарий
  • Долго рассматриваю все варианты проектов. С работами Тарасова В. знаком. Проект хорош. хорош и возможностью минимальной доработки: холл на 2 этаже и доп. комната, плоская крыша гаража + поликарбонатная крыша и зим.сад или кабинет. Браво.

    Добрый день, Олег. Спасибо за ваш комментарий и комплимент.

    Вместо холла на 2-ом этаже абсолютно без проблем можно сделать комнату и расширить ее за счет соседних.

    Над гаражом возможно сделать большую кладовую с входом в нее с лестницы. Надстраивать над гаражом еще одну комнату или зимний сад - это потребует корректировки конструкции гаража.

    Ответ на комментарий
  • Очень понравился дом. Возможны ли изменения: 1. вместо веранды - терраса 2. сделать один из санузлов в входом из спальни. 3. какая высота потолков?

    Добрый день, Анна.

    1. Просто не ставьте остекление, и у вас будет терраса.

    2. На 2-ом этаже можно отказаться от сауны, и сделать вход в один из санузлов из спальной. Такие корректировки мы можем внести в Паспорт проекта.

    3. Высота 1-го этажа 3м в чистоте, 2-го этажа - 2м95см в чистоте

    Ответ на комментарий
  • Во сколько обойдётся строительство такого дома?

    Цена строительства отчасти зависит от региона: местной рабочей силы и стоимости материалов - зачастую производимые в регионах материалы дешевле и не хуже тех. что делают в Москве и Питере. Поэтому, трудно дать точный ответ на ваш вопрос. Правильную цифру вы получите, только когда проведете тендер среди местных компаний и получите от них сметы. Обязательно при проведении тендера требуйте, чтобы вам четко разделили смету на две части: материалы и рабочая сила.

    Ответ на комментарий
  • Ураа я нашел ДОМ мечтой!!! очаровательный дом. В нем все самое необходимое и ничего лишнего. теперь будем знать что строить.
    Ответ на комментарий
  • Мы ( с внуком) тоже порадовались, любуясь такой красотой-домом. Сразу захотелось иметь такой дом. Мы не специалисты в архитектуре, но кое-что на даче изображали. Автор проекта - молодец!
    Ответ на комментарий
  • Я в восторге от этого проекта!!!Какая красота!!!!Хочу построить такой дом!!!

    Благодарим за такую высокую оценку нашего проекта.

    С готовностью ответим на Ваши вопросы и предоставим проект.

    Ответ на комментарий
  • Мой любимый проект! Обалденно красивый дом! Какой же Вы талантище! Невозможно взор отвести от такой красоты! Особенно элегантно смотрится балкончик и окно-арка.Но и всё остальное шикарно. Примите моё восхищение!!! Чувства от просмотра этого проекта сравнимо с прослушиванием душещипательной музыки.Люблю Пугачёву,голос Днепрова,много другого хорошего и,вот теперь,архитектуру Тарасова.Браво!!!

    Наталья, здравствуйте

    Благодарим за такую высокую оценку проекта.

    Проект имеет 100% готовность всех разделов.

    Ответ на комментарий
  • домик супер!!!хочу себе такой)))
    Ответ на комментарий
Показать ещё комментарии Добавить комментарий
Добавление комментария

Коллекции с этим проектом